当前位置: 首页 > news >正文

巧用LEF实现row aware track规划

对于常规的track,通常基于LEF里的pitch,offset就可以直接创建(PS:当然也有invs自动调整的场景,这个需要用户留意),但是由于std-cell 的PG pin的存在,这个对于M1 (std-cell pin layer)track,是有一点小复杂,如果用户想充分利用M1的track,需要一点小技巧,这篇文章采用了了LEF里的一个特性来实现这个目的。闲言少叙,ICer GO!
在这里插入图片描述

大部分的std-cell LIB的pin (PG signal)基本都是出在最低层,譬如:M1,由于IR的考虑和tap-less的设计策略,M1的PG pin通常不会使用min width。所以用户会经常碰到M1的PG pin的相邻track无法利用的问题,从而导致一些track的浪费。

M1 track 的场景

譬如某55nm工艺,tech_lef 对M1的描述如下:

在这里插入图片描述

可以看到,min width是0.09

PS: 这里为了方便,pitch (0.2) > width(0.09) + spacing (0.09)

std-cell的细节如下:

在这里插入图片描述

itemvalue
Std-cell row1.2
PG pin width0.1
Track pitch0.2

所以,这里在PG pin的相邻的track和PG pin的间距只有0.05,这个track显然是无法被利用的。

在这里插入图片描述

另外,由于PG pin width(0.1)正好是pitch(0.2)的一半,tech_lef里边也声明了offset是0.1,所以这样的每一个stdcell的M1 的PG pin 都会处于M1的两个track的正中心。(见下图)

在这里插入图片描述

PS:这里也是std-cell 设计成track的整数倍的一个原因,方便用户在row和track之间做关联

这样,对于上述情况,在每一行row的stdcell上都会重复出现

0.2(pitch) = pg_pin_width(0.1) + pg_pin_相邻track_spacing(0.02)*2

所以,为了可以让PG pin相邻的track可以使用利用上,就需将和PG相邻track 做特殊处理,其他的track 依然按照正常的pitch进行规划即可。

invs 内建命令方式

Invs里边提供了add_track的命令,可以对于局部track进行调整和定义,也支持使用比较复杂的-pitch_pattern-width_pitch_pattern模式,同时也可以支持repeat功能,减少用户的脚本量。

譬如:

invs> add_tracks –pitch_pattern {M1 pitch n {pitch m repeat p} pitch n {pitch m repeat p} ...... pitch n {pitch m repeat p}}  

基于pattern: pitch_n * 1 + pitch_n*p)的多次重复的M1 track array,直至die edge。这样的写法有以下几个问题:

  • 脚本量过大:每一个pattern都需要手动重复
  • 导出的DEF也较为复杂(基于输出脚本量)
  • 不方便维护

所以,这里推荐采用下列的更为智慧的一种方式

LEF 指引实现row aware 的track构建

仔细观察这个问题,目前要解决的是std-cell PG pin相邻的track的间距,其他的track 依然维持当前的pitch。

功能介绍

在LEF 5.8里边,有一个property可以单独定义row对上下的track pitch要求,其余的pitch依然按照常规的的pitch构建

在这里插入图片描述

譬如下例:

PITCH 0.1 FIRSTLASTPITCH 0.14 

此时,invs会对基于row的相邻pitch,采用FIRSTLASTPITCH的定义:0.14,对于其他的pitch,使用PITCH 的定义:0.1,示意如下。

在这里插入图片描述

所以,

row = FIRSTLASTPITCH * 2 + n*PITCH 

这里的智能之处就是n是invs根据row和PITCH共同演算出来的,不需要用户去做显性定义,更不用去手动重复pattern,这个对于大大提升了track的创建效率,也减少了的DEF的数据量。

就这个例子而言,row是1.08,那么根据上述公式,可以得到n=8,完整算式是:

1.08(row) = 0.14(FIRSTLASTPITCH) * 2 + 8* 0.1 (PITCH )

这种考虑row的pitch规划,可以很好的兼顾row和pitch,从而让所有的M1 track都是属于可用状态。由于这里是对FIRSTLASTPITCH统一规定,所以PG pin的中线(center line)需要位于两个pitch的正中央。目前看过很多std-cell lib,这个应该是std-cell的一个设计准则。

项目实战

针对文章开始的stdcell和tech_lef描述,目前需要下列的LEF进行描述对上述功能进行是能:

在这里插入图片描述

为了让5.8对于古早LEF有很好的兼容性,这里使用的是PROPERTYDEFINITIONS的方式对此功能进行引入,所以无论你的LEF是之前的任意老版本(VERSION 5.7|5.6 etc.; ),这种写法都可以让invs正确识别。

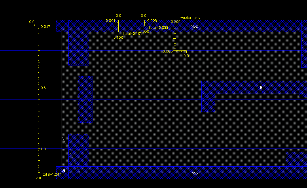
这个时候track 的结果如下:

在这里插入图片描述

PS:这个示例比较凑巧,PG pin的中线正好和track重合,对于此类简单问题,用户也可以使用offset的方式进行调整,对于复杂的情形,建议使用上述LEF的方式。

Track的调整比对

在这里插入图片描述

可见,经过调整优化,M1的available track 提升了:14.4%

【敲黑板划重点】

image-20240503184222477
track是绕线的基础资源,巧用LEF的方式,可以有效地利用M1的track,对于资源有限的项目而言,不失为一种,在不改变die size的情形下有效提升资源的有效手段

参考资料

Cadence LEF/DEF 5.8 Language Reference
Cadence Innovus Text Command Reference

http://www.dtcms.com/a/499411.html

相关文章:

  • 大话数据结构之 <栈> 和<队列>(C语言)
  • Windows 系统的 Delivery Optimization后台用了几GB流量,如何暂停?
  • 基于ads1256的ADC控制实现
  • 建站之星破解版手机正规建网站企业
  • 建一个电商网站要多少钱wordpress及时聊天
  • 云端思维导图软件,多设备同步无压力
  • Python Web 开发:从框架到实战案例
  • 做网站每天任务及实训过程公司关于网站建设的通知
  • 网站联系方式修改织梦网站建设是在商标哪个类别
  • 网站管理员密码在哪里找个人做网站的
  • C# 中,依赖注入(DI)的实现方式
  • java微服务驱动的社区平台:友猫社区的功能模块与实现逻辑
  • Flask入门教程——李辉 第三章 关键知识梳理
  • 产品更新与重构策略:创新与稳定的平衡之道
  • 【微服务】(1) Spring Cloud 概述
  • 做外贸球衣用什么网站嘉兴做微网站
  • 京华建设科技有限公司网站中华建筑网校
  • 合肥市高新区2025年初中信息学竞赛试题T1-T4 C++ 有故事听[doge]
  • Day 13 root 相关说明--以 ANAEX01 为实例
  • [Linux]学习笔记系列 -- [kernel][lock]debug_locks
  • Linux中双向链表介绍
  • 建设网站的运行费包括什么地方企业做网站哪家公司好
  • 产品频繁重构:企业发展的双刃剑
  • 微软Win11双AI功能来袭:“AI管家”+聊天机器人重构桌面交互体验
  • 2025年SEVC SCI2区,改进混沌多元宇宙算法+可重构作业车间物料配送优化,深度解析+性能实测,深度解析+性能实测
  • 建设网站的网站底压电工证wordpress导航主题模板下载地址
  • 自己做的网站怎么弄成app包装产品做网站
  • [GO]GORM中的Tag映射规则
  • 网站建设全包公司推荐山东大学青岛校区建设指挥部网站
  • P8611 蚂蚁感冒