卫生器具工程量清单计量
装修到卫浴环节,不少业主盯着马桶犯愁:智能款功能太多怎么挑?国产大牌哪个更靠谱?安装时工人会不会偷工减料?最后一算账,怎么比预算多了好几千?别慌,这篇专为普通家庭打造的攻略,把国产一二线品牌选型、标准化施工、精准工程量计算全说透,卫生器具工程量精准解析,结合CAD快速看图的图形识别快速计算 。
一、选型:国产大牌闭眼选,跟着需求对号入座
2025年装修流行“实用美学”,国产马桶早已不是“基础排污”的代名词,箭牌、九牧、恒洁这些一二线品牌,在智能功能、节水性能上完全不输外资。核心是先明确3个问题:家里人口结构、卫生间条件、预算范围,再针对性挑款。
1. 先搞懂2个关键参数,避免买错装不上
不管智能还是普通款,先把这两个数据测准,否则再好看也白搭:
坑距:贴完瓷砖后,墙面到排污口中心的距离,常见305mm、400mm两种(误差不超10mm)。老房子多305mm,新房多400mm,拿卷尺贴着瓷砖量最准,别信开发商给的毛坯数据。

水压:高层、老小区别碰“无水箱纯水压款”。打开卫生间水龙头,水流若细弱无力,优先选带“内置水箱+增压泵”的型号,比如恒洁H36Max、九牧S770P,冲力稳还不堵。
2. 国产大牌精准匹配:不同需求对应款
2025年国产马桶主流功能集中在“抗菌、节水、人性化”,按预算和需求分3类推荐,都是线下门店能试、售后网点多的硬通货:
| 需求类型 | 推荐品牌型号 | 核心优势 | 参考价格 |
| 刚需实用(出租房/老房改造) | 箭牌AE1126(普通款) | 高温陶瓷釉面,不挂污易清洁;虹吸式冲水静音,水封防臭 | 800-1200元 |
| 品质改善(三口之家) | 九牧S770P(智能款) | 魔力泡防溅防臭,脚感冲水解放双手;SIAA抗菌座圈,适配小卫生间 | 2800-3500元 |
| 高端舒适(有老人/孕妇) | 恒洁H36Max(智能款) | 离座自动冲水,99.99%抗菌;增压泵+无水压限制,顶楼也能用 | 3500-4500元 |
| 极简设计(现代风装修) | 惠达HDE5001(壁挂智能款) | 悬空安装无卫生死角,一键记忆3人使用习惯,颜值适配网红卫生间 | 5000-6500元 |
3. 2025年避坑指南:这些功能别为智商税买单
警惕“伪无水压”:必须是“内置水箱+电动增压”双保障,单靠增压泵的高层仍会掉链子;
抗菌要看认证:认准SIAA抗菌座圈、UVC紫外线杀菌,口头宣传“抗菌”的别信;
智能不是越复杂越好:老人家庭优先选旋钮操作(如恒洁Q9X),比触屏遥控器更省心。

二、施工:3大阶段盯紧细节,避免返工隐患
马桶安装不是“放上去拧螺丝”那么简单,从水电改造到最终验收,每个环节都影响后续使用,尤其智能马桶,前期预留不到位,后期只能砸墙。
1. 前期预留:水电+空间提前规划,这步在贴瓷砖前完成,错过再改成本翻倍:
智能马桶电源:马桶左侧/右侧30cm,内预留五孔插座,离地30cm,带防水盖(避免溅水短路);
空间预留:马桶两侧至少留20cm操作空间,前方留60cm以上,避免开门撞马桶。
2. 现场安装:6步标准化流程,盯紧工人做
清理排污口:敲掉管口封堵物,用砂纸打磨管口毛刺,避免后期漏水;
安装密封圈:用玻璃胶将密封圈固定在马桶排污口,必须贴紧无缝隙(这是防臭核心);
对准定位:马桶排污口对准管道口,轻轻放下(别硬推,避免密封圈移位);
固定马桶:普通款用膨胀螺丝固定(别拧太紧,防止陶瓷开裂),壁挂款需校准水平后锁死支架;
密封打胶:马桶与地面接缝打防霉玻璃胶,胶线要均匀,24小时内别用马桶;
测试冲水:智能款通电测试功能,普通款冲水检查是否顺畅,有无漏水。

3. 验收要点:3个小测试排除隐患
冲水测试:扔两张卫生纸,一次冲净无残留,说明冲力合格;
防漏测试:在马桶底部倒少量水,10分钟后地面无渗水,密封达标;
智能功能测试:座圈加热、冲洗功能切换正常,无漏电提示。
- 工程量计算实例
1、2024清单计算规则

2、=计算实例
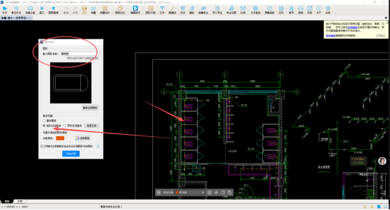
首先我们来看下坐便器,马桶的CAD图例

(蹲便器)

(马桶)
其次,选择蹲便器图例,使用CAD快速看图的图形识别功能,统计蹲便器,马桶工程量

我们可以看到蹲便器的工程量,双击坐标点可以反查
我们继续统计坐便器(马桶)工程量,依然使用图形识别功能

最后,我们可以图形识别,查看以识别的图形列表,查看蹲便器,坐便器(马桶)的工程量。

掌握以上选型要点与施工规范,选购马桶就能避开90%的坑。更关键的是,算量环节不可忽视,结合清单规则与CAD快速看图的图形识别功能高效准确统计工程量,才能让选型、施工、预算形成闭环,真正实现卫浴装修“省心省力省钱”,轻松选到适配自家、用得舒心的高性价比马桶,提升居家幸福感。
#卫生器具#安装工程#图形识别#CAD快速看图
